赤坂日本ビル B1+5F
物件概要
物件番号
133-00218-61物件名
赤坂日本ビル所在地
- 東京都港区赤坂9-5-24
- アクセスマップ
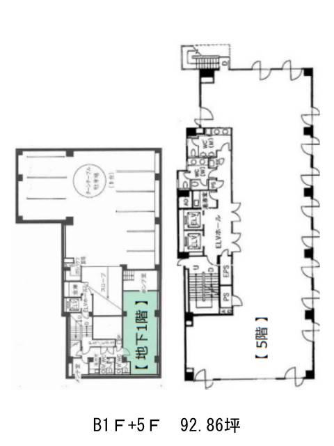
面積
92.86坪賃料(共益費含)
月額2,247,212円(24,200円/坪)
入居日
相談保証金
16,343,360円礼金
なし更新料
なし償却費
なし竣工
1994年10月構造
SRC規模
地上5階/地下1階トイレ
男女別空調
個別空調エレベーター
有セキュリティ
有駐車場
有耐震
新耐震基準基準階天井高
2600mm空室延床面積
171.50坪情報更新日
2025/12/18赤坂日本ビルのテナント募集中区画
| 階数 | 面積 | 賃料(共益費含む) | 保証金 | 入居可能日 | 検討リスト | 詳細 |
|---|---|---|---|---|---|---|
| B1+5F | 92.86坪 | 2,247,212円/月(24,200円/坪) | 1,634万円 | 相談 | ||
| 5 | 78.64坪 | 1,730,080円/月(22,000円/坪) | 1,258万円 | 即 |
…新着物件
赤坂日本ビルのアクセス
赤坂日本ビルの物件情報
赤坂日本ビル(港区赤坂)は乃木坂駅(2番出口)から徒歩2分の賃貸オフィスです。1994年竣工、外観は全体的にグレーを基調とした色合いで、石造りになっているためとても重厚感のあるビルです。エントランスやエレベーターホールは清潔感があり、とても落ち着いた空間となっております。基準階は約79坪あり、室内は余計な柱が無いため、効率の良いレイアウトが組めそうです。貸室内にはOAフロアが備えられており、トイレは男女別となっております。また周辺にはコンビニや飲食店などがあるため、ランチも楽しめるでしょう。赤坂日本ビルは乃木坂駅(2番出口)の他に六本木駅(8番出口)徒歩7分、赤坂駅(7番出口)徒歩10分で利用も可能です。

