赤坂栗原ビル 4階
物件概要
物件番号
133-00614-10物件名
赤坂栗原ビル所在地
- 東京都港区赤坂7-11-7
- アクセスマップ
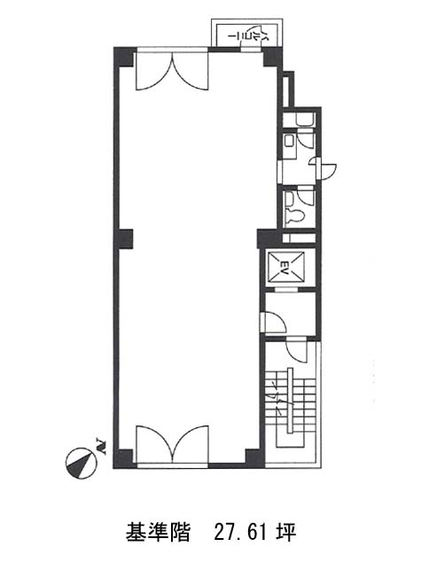
面積
27.61坪賃料(共益費含)
月額570,000円(20,644円/坪)
入居日
2026年3月下旬保証金
3,109,107円礼金
1ケ月更新料
新1ケ月償却費
1ケ月竣工
1987年10月構造
RC規模
地上 7階/地下1階トイレ
男女共用空調
個別空調エレベーター
有セキュリティ
有駐車場
無耐震
新耐震基準基準階天井高
空室延床面積
27.61坪情報更新日
2026/03/11赤坂栗原ビルのテナント募集中区画
| 階数 | 面積 | 賃料(共益費含む) | 保証金 | 入居可能日 | 検討リスト | 詳細 |
|---|---|---|---|---|---|---|
| 4 | 27.61坪 | 570,000円/月(20,644円/坪) | 310万円 | 2026年3月下旬 |
…新着物件
赤坂栗原ビルのアクセス
赤坂栗原ビルの物件情報
赤坂栗原ビル(港区赤坂)は赤坂駅(7番出口)から徒歩5分の賃貸オフィスです。赤坂栗原ビルは赤坂駅(7番出口)の他に乃木坂駅(1番出口)徒歩6分、六本木駅(8番出口)徒歩9分で利用も可能です。

