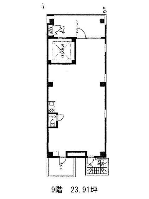
PRIME・A 9階
物件概要
PRIME・Aのテナント募集中区画
| 階数 | 面積 | 賃料(共益費含む) | 保証金 | 入居可能日 | 検討リスト | 詳細 |
|---|---|---|---|---|---|---|
| 6 | 26.21坪 | 応相談(応相談) | 応相談 | 相談 | ||
| 7 | 26.07坪 | 応相談(応相談) | 応相談 | 相談 | ||
| 8 | 26.07坪 | 応相談(応相談) | 応相談 | 相談 | ||
| 9 | 23.91坪 | 応相談(応相談) | 応相談 | 相談 |
…新着物件
PRIME・Aのアクセス
PRIME・Aの物件情報
PRIME・A(港区麻布十番)は麻布十番駅(5番出口)から徒歩2分の賃貸オフィスです。PRIME・Aは麻布十番駅(5番出口)の他に赤羽橋駅(中之橋口)徒歩11分、六本木駅(出口)徒歩14分で利用も可能です。

