新麻布十番ビルディング 2階
物件概要
物件番号
144-00042-41物件名
新麻布十番ビルディング所在地
- 東京都港区麻布十番2-3-5
- アクセスマップ
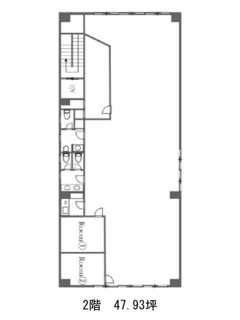
面積
47.93坪賃料(共益費含)
月額1,116,291円(23,290円/坪)
入居日
即保証金
5,703,670円礼金
なし更新料
新1ケ月償却費
1ケ月竣工
1971年12月構造
RC規模
地上6階トイレ
男女別空調
個別空調エレベーター
有セキュリティ
有駐車場
無耐震
旧耐震基準基準階天井高
空室延床面積
47.93坪情報更新日
2026/03/02新麻布十番ビルディングのテナント募集中区画
| 階数 | 面積 | 賃料(共益費含む) | 保証金 | 入居可能日 | 検討リスト | 詳細 |
|---|---|---|---|---|---|---|
| 2 | 47.93坪 | 1,116,291円/月(23,290円/坪) | 570万円 | 即 |
…新着物件
新麻布十番ビルディングのアクセス
新麻布十番ビルディングの物件情報
新麻布十番ビルディング(港区麻布十番)は麻布十番駅(5b番出口)から徒歩2分の賃貸オフィスです。外観はブラウン系のタイル張りでシンプルながらもややハードな素材が重厚感を醸し出しています。
1フロアは約48坪の整形区画で、使い勝手の良い間取り。
さらに、本物件のすぐ隣には郵便局が立地しており、日々の郵送業務や書類対応がスムーズに行える点も嬉しいポイント。
麻布十番の賑わいある商店街エリアに立地しているため、周辺は飲食店やショップが充実。利便性と快適さを兼ね備えたロケーションです。新麻布十番ビルディングは麻布十番駅(5b番出口)の他に赤羽橋駅(中之橋口)徒歩12分、六本木駅(出口)徒歩13分で利用も可能です。

