2階は現在募集がありません
2フロア募集区画あり

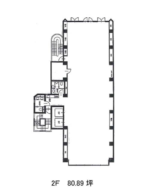
オーイズミ六本木 2階

前の写真 次の写真

物件概要

物件番号

147-00008-20

物件名

オーイズミ六本木

所在地

面積

80.89坪

賃料(共益費含)


入居日

募集終了

保証金

礼金

更新料

償却費

竣工

1989年4月

構造

SRC

規模

地上9階/地下1階

トイレ

男女別

空調

個別空調

エレベーター

セキュリティ

駐車場

耐震

新耐震基準

基準階天井高

2550mm

空室延床面積

116.24坪

最寄駅

情報更新日

2026/05/25

オーイズミ六本木のテナント募集中区画

階数 面積 賃料(共益費含む) 保証金 入居可能日 検討リスト 詳細
4 64.29坪 1,909,413円/月(29,700円/坪) 1,041万円 2026年8月上旬
8 51.95坪 1,542,915円/月(29,700円/坪) 841万円 2026年8月上旬
…新着物件

オーイズミ六本木のアクセス

オーイズミ六本木の物件情報

オーイズミ六本木(港区六本木)は六本木一丁目駅(3番出口)から徒歩3分の賃貸オフィスです。
1989年竣工の新耐震基準を満たしたオフィスビルです。基準階は約50坪あり、室内は長方形の整形オフィスのため、効率の良いレイアウトが組めそうです。またOAフロア、個別空調完備など設備面は充実しており、トイレは男女別となっており、駐車場も併設しているため、社用車を使う場合も便利です。周辺にはコンビニや飲食店などが複数あるため、ランチも楽しめるでしょう。またビルの1Fにもコンビニが入っているため、休憩時などに活用しやすいでしょう。
オーイズミ六本木は六本木一丁目駅(3番出口)の他に溜池山王駅(12番出口)徒歩6分、赤坂駅(5a番出口)徒歩9分で利用も可能です。

近隣のエリア・駅から探す