オーイズミ六本木 7階
物件概要
物件番号
147-00008-81物件名
オーイズミ六本木所在地
- 東京都港区六本木2-2-8
- アクセスマップ
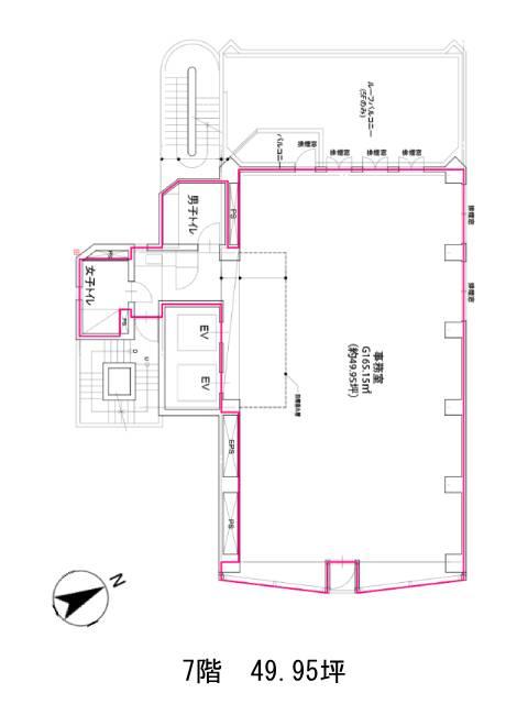
面積
49.95坪賃料(共益費含)
:応相談応相談
入居日
相談保証金
応相談礼金
なし更新料
新1ケ月償却費
なし竣工
1989年4月構造
SRC規模
地上9階/地下1階トイレ
男女別空調
個別空調エレベーター
有セキュリティ
有駐車場
有耐震
新耐震基準基準階天井高
2550mm空室延床面積
112.13坪情報更新日
2026/03/05オーイズミ六本木のテナント募集中区画
| 階数 | 面積 | 賃料(共益費含む) | 保証金 | 入居可能日 | 検討リスト | 詳細 |
|---|---|---|---|---|---|---|
| 4 | 62.18坪 | 応相談(応相談) | 応相談 | 即 | ||
| 7 | 49.95坪 | 応相談(応相談) | 応相談 | 相談 |
…新着物件
オーイズミ六本木のアクセス
オーイズミ六本木の物件情報
オーイズミ六本木(港区六本木)は六本木一丁目駅(3番出口)から徒歩3分の賃貸オフィスです。1989年竣工の新耐震基準を満たしたオフィスビルです。基準階は約50坪あり、室内は長方形の整形オフィスのため、効率の良いレイアウトが組めそうです。またOAフロア、個別空調完備など設備面は充実しており、トイレは男女別となっており、駐車場も併設しているため、社用車を使う場合も便利です。周辺にはコンビニや飲食店などが複数あるため、ランチも楽しめるでしょう。またビルの1Fにもコンビニが入っているため、休憩時などに活用しやすいでしょう。オーイズミ六本木は六本木一丁目駅(3番出口)の他に溜池山王駅(12番出口)徒歩6分、赤坂駅(5a番出口)徒歩9分で利用も可能です。

