8階 8-Bは現在募集がありません
1フロア募集区画あり

恵比寿ビジネスタワー 8階 8-B

前の写真 次の写真

物件概要

物件番号

159-00188-252

物件名

恵比寿ビジネスタワー

所在地

面積

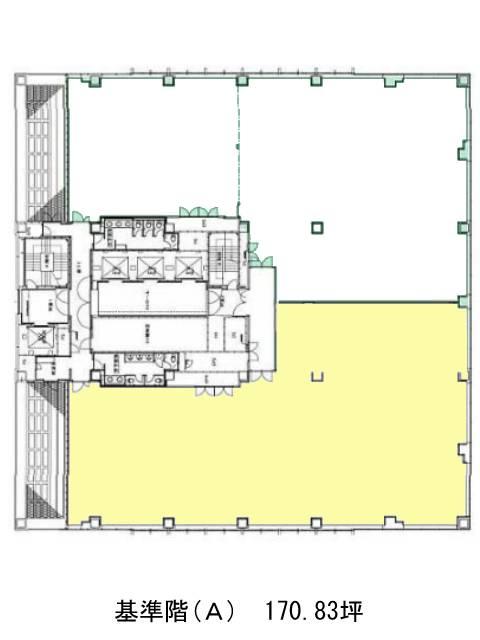
170.83坪

賃料(共益費含)


入居日

募集終了

保証金

礼金

更新料

償却費

竣工

2003年12月

構造

規模

地上18階/地下1階

トイレ

男女別

空調

個別空調

エレベーター

セキュリティ

駐車場

耐震

新耐震基準

基準階天井高

2700mm

空室延床面積

358.91坪

最寄駅

情報更新日

2025/12/01

恵比寿ビジネスタワーのテナント募集中区画

階数 面積 賃料(共益費含む) 保証金 入居可能日 検討リスト 詳細
18 358.91坪 15,002,438円/月(41,800円/坪) 応相談 2026年11月上旬
…新着物件

アクセス

恵比寿ビジネスタワーの物件情報

恵比寿ビジネスタワー(渋谷区恵比寿)は恵比寿駅(東口)から徒歩5分の賃貸オフィスです。
2003年竣工の地上18階建てです。白いタイルと水色の窓ガラスが美しい外観で、広い敷地にゆたかな植樹を備えたエントランスアプローチも魅力的です。フロア全体はコの字型、3面を窓に囲まれた明るく開放的な空間です。また、当物件は2016年にリニューアル済みで、水回りなどの内装も綺麗に整えられています。エレベーターは6基設置され、行き先階によって分けられていますので、昇降がスムーズでしょう。ビルの設備としましては、個別空調、OAフロア、男女別トイレ、駐車場等に加え、カード式機械警備、免震設計、自家発電など安全性を高めるスペックも充実しています。周辺は落ち着いたオフィス街で、郵便局が近くにあり、飲食店やコンビニが複数営業しています。
恵比寿ビジネスタワーは恵比寿駅(東口)の他に広尾駅(2番出口)徒歩14分、代官山駅(東口)徒歩15分で利用も可能です。

近隣のエリア・駅から探す