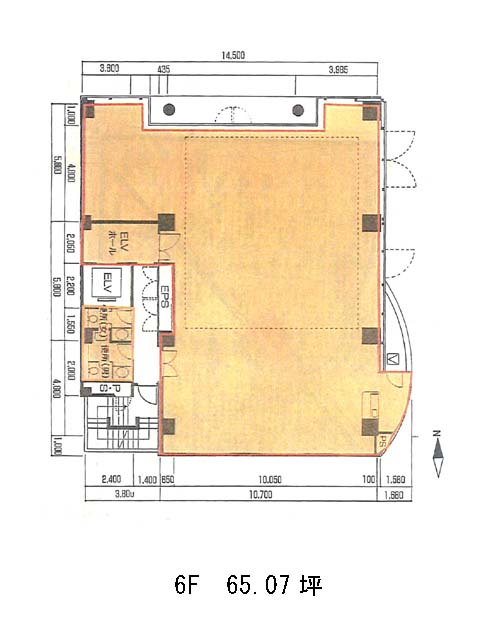
TAMA WOODY GATE EBISUのテナント募集中区画
| 階数 | 面積 | 賃料(共益費含む) | 保証金 | 入居可能日 | 検討リスト | 詳細 |
|---|---|---|---|---|---|---|
| 4 | 70.37坪 | 応相談(応相談) | 応相談 | 即 |
…新着物件
アクセス
TAMA WOODY GATE EBISUの物件情報
TAMA WOODY GATE EBISU(渋谷区恵比寿)は恵比寿駅(東口)から徒歩4分の賃貸オフィスです。TAMA WOODY GATE EBISUは恵比寿駅(東口)の他に代官山駅(東口)徒歩13分、広尾駅(2番出口)徒歩14分で利用も可能です。

