3階は現在募集がありません
1フロア募集区画あり

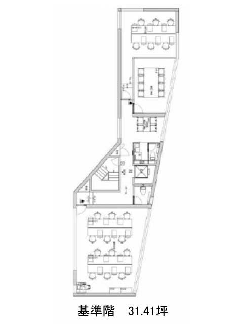
TQ恵比寿 3階

前の写真 次の写真

物件概要

物件番号

159-00340-7

物件名

TQ恵比寿

所在地

面積

31.41坪

賃料(共益費含)


入居日

募集終了

保証金

礼金

更新料

償却費

竣工

2011年3月

構造

RC

規模

地上4階/地下1階

トイレ

男女別

空調

個別空調

エレベーター

セキュリティ

駐車場

耐震

新耐震基準

基準階天井高

空室延床面積

31.41坪

最寄駅

情報更新日

2025/11/05

TQ恵比寿のテナント募集中区画

階数 面積 賃料(共益費含む) 保証金 入居可能日 検討リスト 詳細
4 31.41坪 792,000円/月(25,215円/坪) 432万円
…新着物件

TQ恵比寿のアクセス

TQ恵比寿の物件情報

TQ恵比寿(渋谷区恵比寿)は恵比寿駅(東口)から徒歩9分の賃貸オフィスです。
TQ恵比寿は恵比寿駅(東口)の他に広尾駅(2番出口)徒歩10分で利用も可能です。

近隣のエリア・駅から探す