9階 9Bは現在募集がありません
恵比寿ファーストスクエア 9階 9B
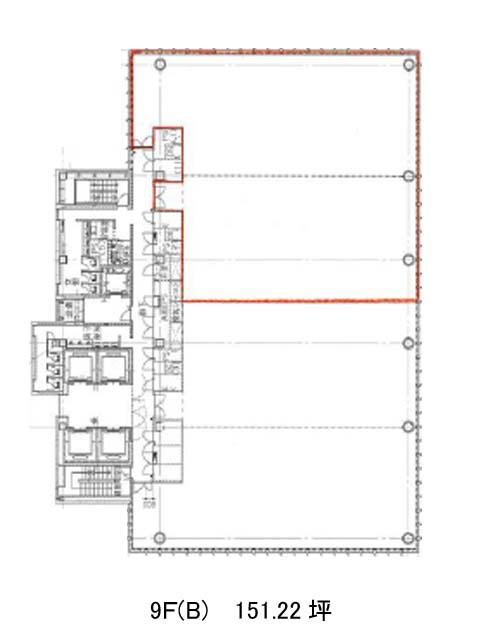
物件概要
恵比寿ファーストスクエアのテナント募集中区画
現在、空室がございません。
恵比寿ファーストスクエアのアクセス
恵比寿ファーストスクエアの物件情報
恵比寿ファーストスクエア(渋谷区恵比寿)は恵比寿駅(東口)から徒歩7分の賃貸オフィスです。2014年竣工、恵比寿橋南交差点の角地にある地上12階建てで、1階ではカフェが営業中です。外観は青いミラーガラスに縦ラインのフレームが映えるスタイリッシュなもので、視認性が高いです。白石の壁に囲まれた吹き抜けのエントランスは明るく開放感あふれるデザインです。エレベーターは5基設置されていますので、通勤時間帯も快適でしょう。基準階面積は300坪、フロア全体は3面のガラス窓に囲まれた明るい空間。主な設備として個別空調、OAフロア、男女別トイレの他、併設の駐車場からお車の利用も便利です。安全面につきましても、有人警備と機械警備の併用でしっかりと管理されています。周辺は落ち着いたオフィス街で、カフェやコンビニが充実していますので、昼食や打ち合わせなどの際に便利です。恵比寿ファーストスクエアは恵比寿駅(東口)の他に広尾駅(2番出口)徒歩12分で利用も可能です。

