恵比寿SAビルのテナント募集中区画
| 階数 | 面積 | 賃料(共益費含む) | 保証金 | 入居可能日 | 検討リスト | 詳細 |
|---|---|---|---|---|---|---|
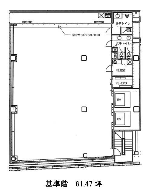
| 5 | 61.47坪 | 応相談(応相談) | 応相談 | 即 |
…新着物件
恵比寿SAビルのアクセス
恵比寿SAビルの物件情報
恵比寿SAビル(渋谷区恵比寿西)は恵比寿駅(4番出口)から徒歩1分の賃貸オフィスです。当ビルは2017年竣工、鉄骨造10階建ての構造で、新耐震基準にも対応しています。特徴的な外観は、緑豊かな植栽と駒沢通り沿いに配置されたガラスファサードが印象的で、恵比寿エリアの中でも一線を画すデザイン。通行人の目を引くユニークな造形は、企業のブランディングにも一役買います。
貸室は整形区画で、柱が少なくレイアウトの自由度が高い設計。各フロアは1テナント専有型で、エレベーターからダイレクトに入室可能な導線が確保されており、プライバシー性や利便性も優れています。天井高は約3.1mと開放感があり、OAフロア、個別空調、光回線、男女別トイレ・給湯室も完備されています。
さらに、SECOMによる機械警備・オートロック・エレベーター不停止機能など、多層的なセキュリティを備えており、情報管理を重視する企業にも安心の体制です。共用テラスでは緑を感じながらの休憩や打ち合わせも可能で、日々の業務に心地よい変化をもたらします。24時間利用可能で、働き方に柔軟性を求めるチームにも適しています。恵比寿SAビルは恵比寿駅(4番出口)の他に代官山駅(東口)徒歩7分、中目黒駅(出口)徒歩12分で利用も可能です。

