WAVE代官山のテナント募集中区画
| 階数 | 面積 | 賃料(共益費含む) | 保証金 | 入居可能日 | 検討リスト | 詳細 |
|---|---|---|---|---|---|---|
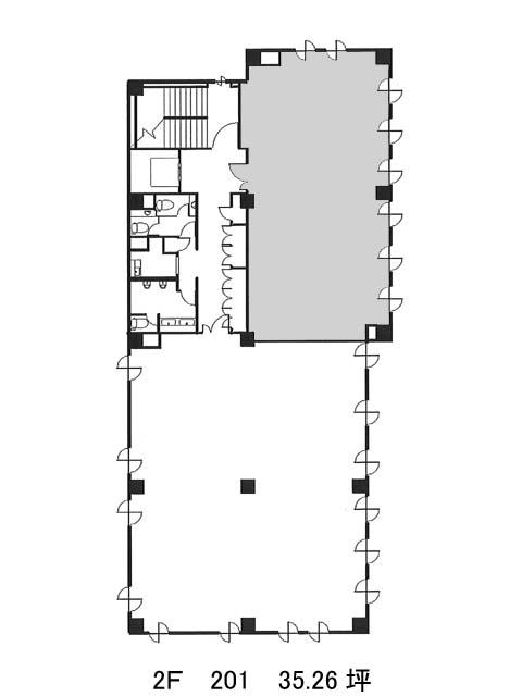
| 2 | 56.66坪 | 応相談(応相談) | 応相談 | 即 |
…新着物件
WAVE代官山のアクセス
WAVE代官山の物件情報
WAVE代官山(渋谷区恵比寿西)は代官山駅(北口)から徒歩3分の賃貸オフィスです。1993年竣工、地上4階建ての鉄筋コンクリート造です。外観は優しいブラウンのタイル調で、線路沿いに立地しているため視認性も良好です。2009年に床や水回りのリニューアル工事を完了し、中に入っても隅々まで手入れの行き届いた心地よい空間です。当物件はエレベーター1基、個別空調、OAフロアを備え、セキュリティは機械警備によって24時間管理されています。近くにはスーパーやコンビニが営業中で、飲食店も充実しているエリアですので、毎日のランチ選びが楽しめそうです。WAVE代官山は代官山駅(北口)の他に恵比寿駅(4番出口)徒歩7分、中目黒駅(出口)徒歩11分で利用も可能です。

