3階 302は現在募集がありません
1フロア募集区画あり

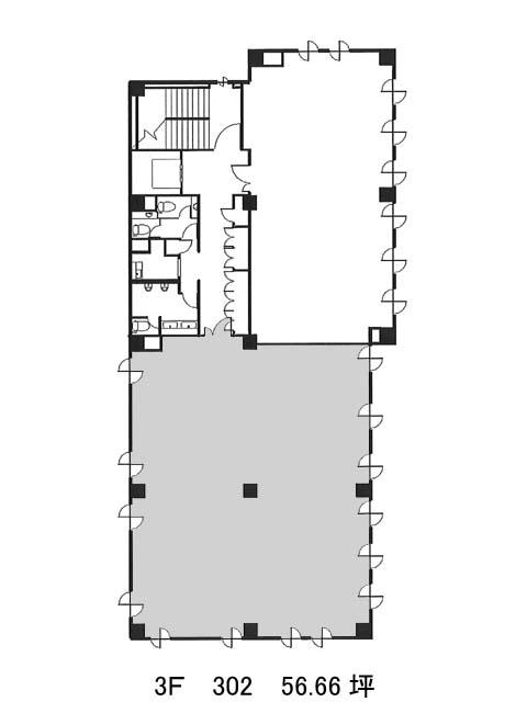
WAVE代官山 3階 302

前の写真 次の写真

物件概要

物件番号

160-00086-60

物件名

WAVE代官山

所在地

面積

56.66坪

賃料(共益費含)


入居日

募集終了

保証金

礼金

更新料

償却費

竣工

1992年6月

構造

RC

規模

地上4階

トイレ

男女別

空調

個別空調

エレベーター

セキュリティ

駐車場

耐震

新耐震基準

基準階天井高

2500mm

空室延床面積

56.66坪

最寄駅

情報更新日

2025/11/19

WAVE代官山のテナント募集中区画

階数 面積 賃料(共益費含む) 保証金 入居可能日 検討リスト 詳細
2 56.66坪 応相談(応相談) 応相談 2025年12月上旬
…新着物件

アクセス

WAVE代官山の物件情報

WAVE代官山(渋谷区恵比寿西)は代官山駅(北口)から徒歩3分の賃貸オフィスです。
1993年竣工、地上4階建ての鉄筋コンクリート造です。外観は優しいブラウンのタイル調で、線路沿いに立地しているため視認性も良好です。2009年に床や水回りのリニューアル工事を完了し、中に入っても隅々まで手入れの行き届いた心地よい空間です。当物件はエレベーター1基、個別空調、OAフロアを備え、セキュリティは機械警備によって24時間管理されています。近くにはスーパーやコンビニが営業中で、飲食店も充実しているエリアですので、毎日のランチ選びが楽しめそうです。
WAVE代官山は代官山駅(北口)の他に恵比寿駅(4番出口)徒歩7分、中目黒駅(出口)徒歩11分で利用も可能です。

近隣のエリア・駅から探す