7階 705は現在募集がありません
2フロア募集区画あり

グリーンファンタジアビル 7階 705

前の写真 次の写真

物件概要

物件番号

170-00165-80

物件名

グリーンファンタジアビル

所在地

面積

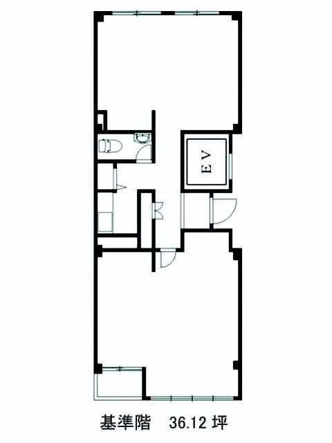
36.12坪

賃料(共益費含)


入居日

募集終了

保証金

礼金

更新料

償却費

竣工

1965年7月

構造

RC

規模

地上7階

トイレ

男女共用

空調

セントラル

エレベーター

セキュリティ

駐車場

耐震

旧耐震基準

基準階天井高

2400mm

空室延床面積

75.91坪

最寄駅

情報更新日

2025/09/18

グリーンファンタジアビルのテナント募集中区画

階数 面積 賃料(共益費含む) 保証金 入居可能日 検討リスト 詳細
6 39.79坪 594,000円/月(14,929円/坪) 216万円
7 36.12坪 685,300円/月(18,973円/坪) 400万円 2026年1月上旬
…新着物件

アクセス

グリーンファンタジアビルの物件情報

グリーンファンタジアビル(渋谷区神宮前)は明治神宮前駅(4番出口)から徒歩2分の賃貸オフィスです。
地上7階建、1965年竣工RC造のビルです。角地に建ち視認性が高いでしょう。来客時にも分かりやすく、存在感があります。昼夜問わず人通りの多く、流行の発信地なこのエリア、様々なビジネスに対応できるでしょう。周辺はアパレルショップが多いエリアです。飲食店も充実しておりランチにご利用頂けるでしょう。EV・駐車場・セントラル空調・OAフロア・男女別トイレ(階数による)といった設備仕様をしています。
グリーンファンタジアビルは明治神宮前駅(4番出口)の他に原宿駅(東口)徒歩4分、表参道駅(A2番出口)徒歩9分で利用も可能です。

近隣のエリア・駅から探す