6階は現在募集がありません
2フロア募集区画あり

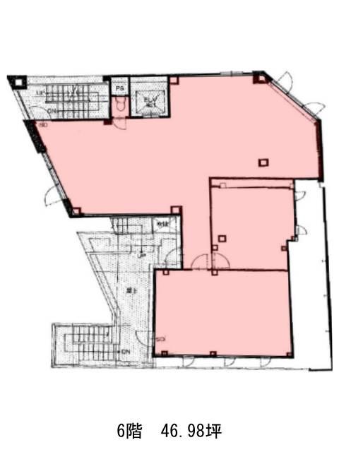
COXY188ビル 6階

前の写真 次の写真

物件概要

物件番号

170-00574-70

物件名

COXY188ビル

所在地

面積

46.98坪

賃料(共益費含)


入居日

募集終了

保証金

礼金

更新料

償却費

竣工

1985年3月

構造

RC

規模

地上8階/地下2階

トイレ

確認中

空調

エレベーター

セキュリティ

駐車場

耐震

新耐震基準

基準階天井高

空室延床面積

256.70坪

最寄駅

情報更新日

2025/10/29

COXY188ビルのテナント募集中区画

階数 面積 賃料(共益費含む) 保証金 入居可能日 検討リスト 詳細
2 201.02坪 7,075,904円/月(35,200円/坪) 5,146万円
4 55.68坪 1,347,456円/月(24,200円/坪) 489万円 相談
…新着物件

アクセス

COXY188ビルの物件情報

COXY188ビル(渋谷区神宮前)は明治神宮前駅(4番出口)から徒歩4分の賃貸オフィスです。
明治通りに面し、ラフォーレ原宿や竹下通り至近の立地は、視認性と集客力の高さが魅力です。
1985年竣工、地上8階・地下2階建ての鉄骨鉄筋コンクリート造(SRC)で、新耐震基準に適合。エレベーターは2基設置され、個別空調や光ファイバー対応など、基本的な設備も整っています。
1フロアあたり200坪超の広さを持ち、分割貸しにも対応可能な柔軟性が特長。店舗・ショールーム・オフィスなど、業種に応じた自由な空間設計が可能です。
周辺には銀行や郵便局、カフェ、飲食店が充実しており、来訪者対応や日常業務にも便利な環境。原宿エリアで高い集客力と柔軟なレイアウトを求める企業にとって、魅力的な選択肢となる物件です。
COXY188ビルは明治神宮前駅(4番出口)の他に原宿駅(竹下口)徒歩5分、表参道駅(A2番出口)徒歩10分で利用も可能です。

近隣のエリア・駅から探す