6階は現在募集がありません
1フロア募集区画あり
ヒューリック神宮前タワービルディング 6階
物件概要
物件番号
170-00894-4物件名
ヒューリック神宮前タワービルディング所在地
- 東京都渋谷区神宮前1-5-8
- アクセスマップ
面積
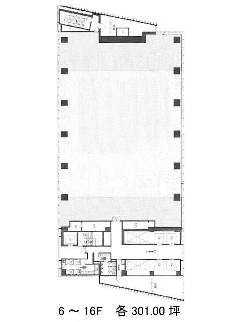
301.00坪賃料(共益費含)
−入居日
募集終了保証金
−礼金
−更新料
−償却費
−竣工
2017年9月構造
S造規模
地上23階/地下3階トイレ
男女別空調
個別空調エレベーター
有セキュリティ
有駐車場
有耐震
新耐震基準基準階天井高
3000mm空室延床面積
300.66坪情報更新日
2026/03/05ヒューリック神宮前タワービルディングのテナント募集中区画
| 階数 | 面積 | 賃料(共益費含む) | 保証金 | 入居可能日 | 検討リスト | 詳細 |
|---|---|---|---|---|---|---|
| 10 | 300.66坪 | 応相談(応相談) | 応相談 | 即 |
…新着物件
ヒューリック神宮前タワービルディングのアクセス
ヒューリック神宮前タワービルディングの物件情報
ヒューリック神宮前タワービルディング(渋谷区神宮前)は明治神宮前駅(4番出口)から徒歩5分の賃貸オフィスです。明治通りと竹下通りが交差する角地にそびえ立つ地上23階・地下3階建ての高層ビルで、2017年竣工。全面ガラス張りの外観が原宿エリアの新たなランドマークとして際立ちます。
基準階は約300坪超の広さを有し、分割区画にも柔軟に対応。天井高3,000mm、OAフロア、個別空調、ICカードによる入退室管理など、機能面も充実しており、多様な働き方にフィットするハイスペックな設計です。エレベーター10基、自走式駐車場28台を完備し、館内の利便性も申し分ありません。
注目すべきは、表参道・原宿という“トレンドの発信地”の中心に位置していること。世界的ブランドの旗艦店が並ぶストリートに隣接し、感性を大切にするクリエイティブ系企業や、マーケティング・広告・PR、アート・カルチャー・ファッションなど、“場所の力”が価値につながる業種にとっては特に好相性。12~14階にはサービスオフィス「The Executive Centre」も併設されており、フレキシブルな活用も可能です。
また、東郷神社や明治神宮の緑に近く、都心でありながら心地よい自然も感じられる稀有な環境。表参道・原宿の中心で、ブランド力と実用性を兼ね備えたオフィスをお探しの企業にとって、魅力的な選択肢のひとつと言えるでしょう。ヒューリック神宮前タワービルディングは明治神宮前駅(4番出口)の他に原宿駅(竹下口)徒歩6分、表参道駅(A2番出口)徒歩11分で利用も可能です。

