シャトレ代官山アネックス 1階
物件概要
物件番号
176-00047-10物件名
シャトレ代官山アネックス所在地
- 東京都渋谷区代官山町2-6
- アクセスマップ
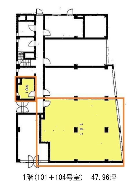
面積
47.96坪賃料(共益費含)
月額935,000円(19,496円/坪)
入居日
即保証金
8,500,430円礼金
1ケ月更新料
なし償却費
なし竣工
1985年3月構造
RC規模
地上5階/地下1階トイレ
男女別空調
個別空調エレベーター
有セキュリティ
駐車場
無耐震
新耐震基準基準階天井高
2400mm空室延床面積
47.96坪情報更新日
2026/02/10シャトレ代官山アネックスのテナント募集中区画
| 階数 | 面積 | 賃料(共益費含む) | 保証金 | 入居可能日 | 検討リスト | 詳細 |
|---|---|---|---|---|---|---|
| 1 | 47.96坪 | 935,000円/月(19,496円/坪) | 850万円 | 即 |
…新着物件
シャトレ代官山アネックスのアクセス
シャトレ代官山アネックスの物件情報
シャトレ代官山アネックス(渋谷区代官山町)は渋谷駅(新南口)から徒歩7分の賃貸オフィスです。シャトレ代官山アネックスは渋谷駅(新南口)の他に代官山駅(西口)徒歩10分、恵比寿駅(2番出口)徒歩11分で利用も可能です。

