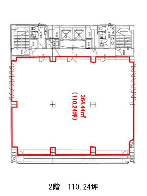
2階は現在募集がありません
エキニア新宿ビル 2階
物件概要
エキニア新宿ビルのテナント募集中区画
現在、空室がございません。
エキニア新宿ビルのアクセス
エキニア新宿ビルの物件情報
エキニア新宿ビル(新宿区歌舞伎町)は新宿三丁目駅(E2番出口)から徒歩3分の賃貸オフィスです。2007年にリニューアルが実施されており、全体的に綺麗な内装に保たれております。薄いグリーンを基調としエントランスで全体的に落ち着いた印象で、清潔感を感じさせてくれます。外観は全面ガラス張りになっていますので、視認性が高いです。フリーアクセスフロアとなっているので、配線類をすっきりとさせることができます。トイレは男女別で、機械式の駐車場を併設しているため、車の利用もしやすいでしょう。徒歩圏内にはコンビニエンスストアの他にカフェ、飲食店が大変多く点在しております。エキニア新宿ビルは新宿三丁目駅(E2番出口)の他に新宿駅(B12番出口)徒歩4分、新宿西口駅(出口1)徒歩7分で利用も可能です。

