エキニア新宿ビル 1階
物件概要
物件番号
192-00003-174物件名
エキニア新宿ビル所在地
- 東京都新宿区歌舞伎町1-1-17
- アクセスマップ
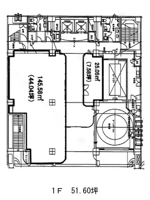
面積
51.60坪賃料(共益費含)
:応相談応相談
入居日
2026年4月上旬保証金
応相談礼金
なし更新料
なし償却費
なし竣工
1988年3月構造
SRC規模
地上9階/地下2階トイレ
男女別空調
個別空調エレベーター
有セキュリティ
有駐車場
有耐震
新耐震基準基準階天井高
2445mm空室延床面積
51.60坪情報更新日
2025/11/06エキニア新宿ビルのテナント募集中区画
| 階数 | 面積 | 賃料(共益費含む) | 保証金 | 入居可能日 | 検討リスト | 詳細 |
|---|---|---|---|---|---|---|
| 1 | 51.60坪 | 応相談(応相談) | 応相談 | 2026年4月上旬 |
…新着物件
アクセス
エキニア新宿ビルの物件情報
エキニア新宿ビル(新宿区歌舞伎町)は新宿三丁目駅(E2番出口)から徒歩3分の賃貸オフィスです。2007年にリニューアルが実施されており、全体的に綺麗な内装に保たれております。薄いグリーンを基調としエントランスで全体的に落ち着いた印象で、清潔感を感じさせてくれます。外観は全面ガラス張りになっていますので、視認性が高いです。フリーアクセスフロアとなっているので、配線類をすっきりとさせることができます。トイレは男女別で、機械式の駐車場を併設しているため、車の利用もしやすいでしょう。徒歩圏内にはコンビニエンスストアの他にカフェ、飲食店が大変多く点在しております。エキニア新宿ビルは新宿三丁目駅(E2番出口)の他に新宿駅(B12番出口)徒歩4分、新宿西口駅(出口1)徒歩7分で利用も可能です。

