T-ビル 1階
物件概要
物件番号
193-00004-10物件名
T-ビル所在地
- 東京都新宿区河田町7-5
- アクセスマップ
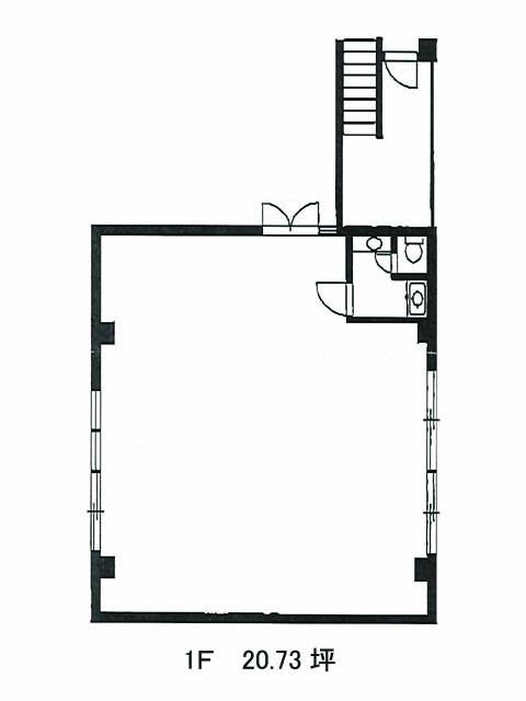
面積
20.73坪賃料(共益費含)
月額319,926円(15,433円/坪)
入居日
即保証金
1,119,420円礼金
なし更新料
新1ケ月償却費
1ケ月竣工
1992年6月構造
S造規模
地上4階トイレ
男女共用空調
個別空調エレベーター
有セキュリティ
駐車場
無耐震
新耐震基準基準階天井高
空室延床面積
20.73坪情報更新日
2026/03/03T-ビルのテナント募集中区画
| 階数 | 面積 | 賃料(共益費含む) | 保証金 | 入居可能日 | 検討リスト | 詳細 |
|---|---|---|---|---|---|---|
| 1 | 20.73坪 | 319,926円/月(15,433円/坪) | 111万円 | 即 |
…新着物件
T-ビルのアクセス
T-ビルの物件情報
T-ビル(新宿区河田町)は若松河田駅(若松口)から徒歩5分の賃貸オフィスです。T-ビルは若松河田駅(若松口)の他に曙橋駅(A1番出口)徒歩8分、牛込柳町駅(西口)徒歩10分で利用も可能です。

