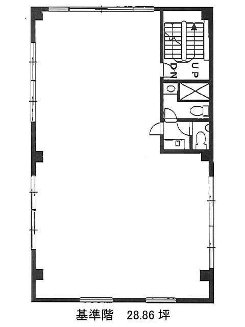
T-ビルのテナント募集中区画
| 階数 | 面積 | 賃料(共益費含む) | 保証金 | 入居可能日 | 検討リスト | 詳細 |
|---|---|---|---|---|---|---|
| 1 | 20.73坪 | 319,926円/月(15,433円/坪) | 111万円 | 即 |
…新着物件
T-ビルのアクセス
T-ビルの物件情報
T-ビル(新宿区河田町)は若松河田駅(若松口)から徒歩5分の賃貸オフィスです。T-ビルは若松河田駅(若松口)の他に曙橋駅(A1番出口)徒歩8分、牛込柳町駅(西口)徒歩10分で利用も可能です。

