3階は現在募集がありません
1フロア募集区画あり

T-ビル 3階

前の写真 次の写真

物件概要

物件番号

193-00004-30

物件名

T-ビル

所在地

面積

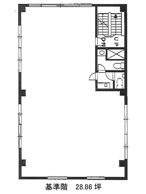
28.86坪

賃料(共益費含)


入居日

募集終了

保証金

礼金

更新料

償却費

竣工

1992年6月

構造

S造

規模

地上4階

トイレ

男女別

空調

個別空調

エレベーター

セキュリティ

駐車場

耐震

新耐震基準

基準階天井高

空室延床面積

20.73坪

最寄駅

情報更新日

2026/03/03

T-ビルのテナント募集中区画

階数 面積 賃料(共益費含む) 保証金 入居可能日 検討リスト 詳細
1 20.73坪 319,926円/月(15,433円/坪) 111万円
…新着物件

T-ビルのアクセス

T-ビルの物件情報

T-ビル(新宿区河田町)は若松河田駅(若松口)から徒歩5分の賃貸オフィスです。
T-ビルは若松河田駅(若松口)の他に曙橋駅(A1番出口)徒歩8分、牛込柳町駅(西口)徒歩10分で利用も可能です。

近隣のエリア・駅から探す