4階は現在募集がありません
2フロア募集区画あり

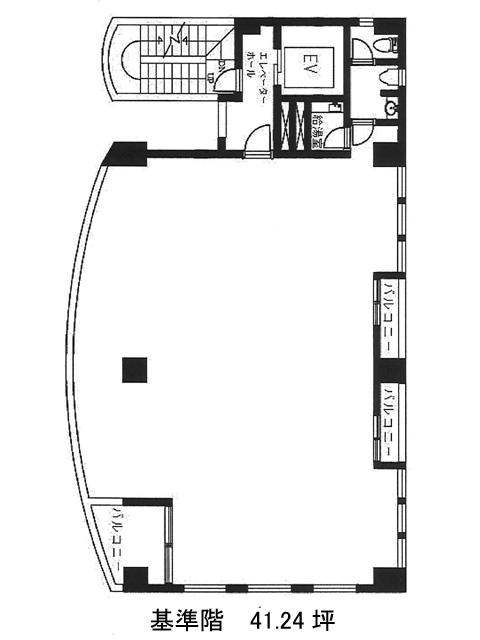
千寿ビル 4階

前の写真 次の写真

物件概要

物件番号

202-00117-21

物件名

千寿ビル

所在地

面積

41.24坪

賃料(共益費含)


入居日

募集終了

保証金

礼金

更新料

償却費

竣工

1989年3月

構造

SRC

規模

地上8階

トイレ

男女共用

空調

エレベーター

セキュリティ

駐車場

耐震

新耐震基準

基準階天井高

空室延床面積

82.48坪

最寄駅

情報更新日

2026/02/24

千寿ビルのテナント募集中区画

階数 面積 賃料(共益費含む) 保証金 入居可能日 検討リスト 詳細
2 41.24坪 736,092円/月(17,849円/坪) 436万円
3 41.24坪 736,092円/月(17,849円/坪) 436万円
…新着物件

千寿ビルのアクセス

千寿ビルの物件情報

千寿ビル(新宿区高田馬場)は高田馬場駅(戸山口)から徒歩4分の賃貸オフィスです。
地上8階建て、基準階は約41坪です。外観は光沢のあるクリーム系の外壁で清潔感があり、前面がゆるやかにカーブしているのが特徴的なデザインです。室内は窓の近くに柱がありますが、長方形の執務空間がしっかりと確保されていますので、レイアウトは比較的しやすいでしょう。設備面は、エレベーター、バルコニー、給湯などが備えられています。駅周辺は沢山の飲食店が軒を連ねる賑やかなエリアです。坂の上の大通りを渡ると、緑豊かな戸山公園へ行くことも出来ます。
千寿ビルは高田馬場駅(戸山口)の他に西早稲田駅(2番出口)徒歩8分、新大久保駅(出口2)徒歩14分で利用も可能です。

近隣のエリア・駅から探す