コレタス高田馬場 1階
物件概要
物件番号
202-00387-8物件名
コレタス高田馬場所在地
- 東京都新宿区高田馬場2-8-2
- アクセスマップ
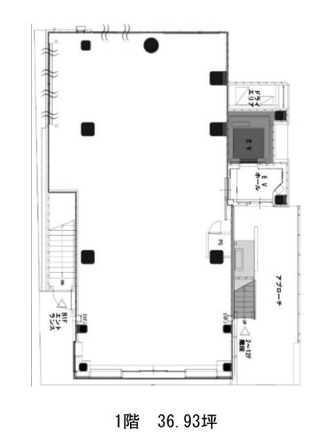
面積
36.93坪賃料(共益費含)
月額1,320,000円(35,743円/坪)
入居日
即保証金
9,600,027円礼金
1ケ月更新料
なし償却費
なし竣工
2023年1月構造
S造規模
地上12階/地下1階トイレ
無空調
個別空調エレベーター
有セキュリティ
駐車場
無耐震
新耐震基準基準階天井高
2500mm空室延床面積
123.69坪情報更新日
2026/02/26コレタス高田馬場のテナント募集中区画
…新着物件
コレタス高田馬場のアクセス
コレタス高田馬場の物件情報
コレタス高田馬場(新宿区高田馬場)は高田馬場駅(7番出口)から徒歩3分の賃貸オフィスです。コレタス高田馬場は高田馬場駅(7番出口)の他に西早稲田駅(1番出口)徒歩5分、面影橋駅(停留所)徒歩9分で利用も可能です。

