壱丁目参番館ビルのテナント募集中区画
| 階数 | 面積 | 賃料(共益費含む) | 保証金 | 入居可能日 | 検討リスト | 詳細 |
|---|---|---|---|---|---|---|
| 8 | 66.03坪 | 1,815,825円/月(27,500円/坪) | 1,162万円 | 相談 |
…新着物件
アクセス
壱丁目参番館ビルの物件情報
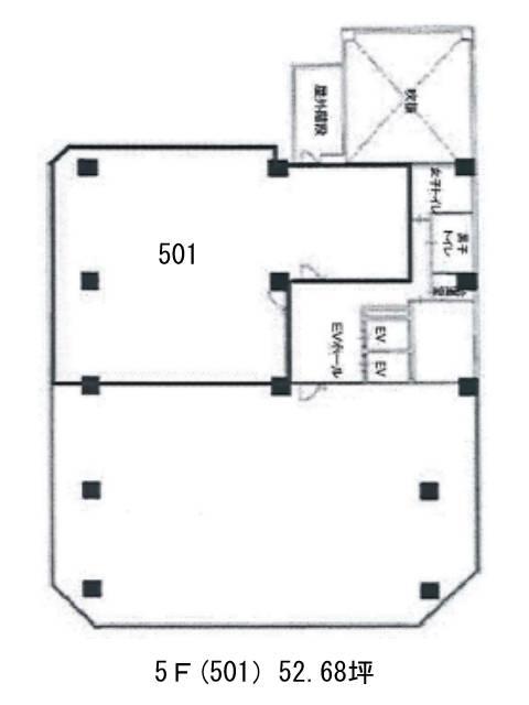
壱丁目参番館ビル(新宿区新宿)は新宿御苑前駅(2番出口)から徒歩3分の賃貸オフィスです。SRC造、地上11階地下1階建のビルです。1984年竣工で新耐震基準に適合しています。二面に大きなガラス窓があり室内に十分な採光が入るでしょう。貸室は中央に支柱が無く、オフィス家具等の配置がしやすい形状をしています。設備仕様はEV2基・駐車場・個別空調・貸室外の男女別トイレ(階数によっては共用)があります。白いタイル張りのすっきりとした外観。共用部の内装は明るいブラウンのタイルを使用しています。管理状態がよい物件です。壱丁目参番館ビルは新宿御苑前駅(2番出口)の他に新宿三丁目駅(C5番出口)徒歩9分、四谷三丁目駅(2番出口)徒歩10分で利用も可能です。

