6階 6Aは現在募集がありません
新宿加藤ビルディング 6階 6A
物件概要
新宿加藤ビルディングのテナント募集中区画
現在、空室がございません。
アクセス
新宿加藤ビルディングの物件情報
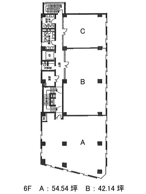
新宿加藤ビルディング(新宿区新宿)は新宿御苑前駅(2番出口)から徒歩7分の賃貸オフィスです。1983年竣工、地上8階建SRC造のビルです。角地に建ち、視認性が高いでしょう。明るいブラウンの外壁に、等間隔にガラス窓が並びます。1階にコンビニがありご案内時の目印として良いでしょう。基準階面積は約118坪。貸室は10坪台~90坪台のものと幅広く揃えております。設備仕様としてEV1基・駐車場・機械警備・個別空調・貸室外の男女別トイレ・非常階段2箇所があります。貸室への出入口が複数あり、来客用と動線を分ける事ができます。新宿加藤ビルディングは新宿御苑前駅(2番出口)の他に新宿三丁目駅(C7番出口)徒歩10分、曙橋駅(A1番出口)徒歩10分で利用も可能です。

