3階は現在募集がありません
1フロア募集区画あり

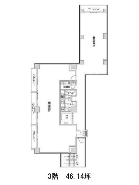
パークフロント新宿 3階

前の写真 次の写真

物件概要

物件番号

230-00704-5

物件名

パークフロント新宿

所在地

面積

46.14坪

賃料(共益費含)


入居日

募集終了

保証金

礼金

更新料

償却費

竣工

2019年9月

構造

RC

規模

地上12階

トイレ

男女別

空調

個別空調

エレベーター

セキュリティ

駐車場

耐震

新耐震基準

基準階天井高

3000mm

空室延床面積

27.45坪

最寄駅

情報更新日

2026/02/18

パークフロント新宿のテナント募集中区画

階数 面積 賃料(共益費含む) 保証金 入居可能日 検討リスト 詳細
2 27.45坪 634,095円/月(23,100円/坪) 345万円
…新着物件

パークフロント新宿のアクセス

パークフロント新宿の物件情報

パークフロント新宿(新宿区新宿)は新宿御苑前駅(1番出口)から徒歩2分の賃貸オフィスです。
新宿通りから少し奥まった立地に佇む本物件。駅からのアクセスも良好で、利便性と落ち着きのバランスが取れたロケーションが魅力です。建物はマンションタイプですが、区画によっては事務所や店舗用途が相談可能。詳細は都度ご確認ください。事務所区画は約46坪。過去には半分程度の分割募集実績もあるため、柔軟な対応も期待できます。周辺には飲食店も多く、働く環境としてもおすすめです。
パークフロント新宿は新宿御苑前駅(1番出口)の他に新宿三丁目駅(C5番出口)徒歩5分、新宿駅(A8番出口)徒歩11分で利用も可能です。

近隣のエリア・駅から探す