パークフロント新宿 2階 202
物件概要
物件番号
230-00704-6物件名
パークフロント新宿所在地
- 東京都新宿区新宿2-8-15
- アクセスマップ
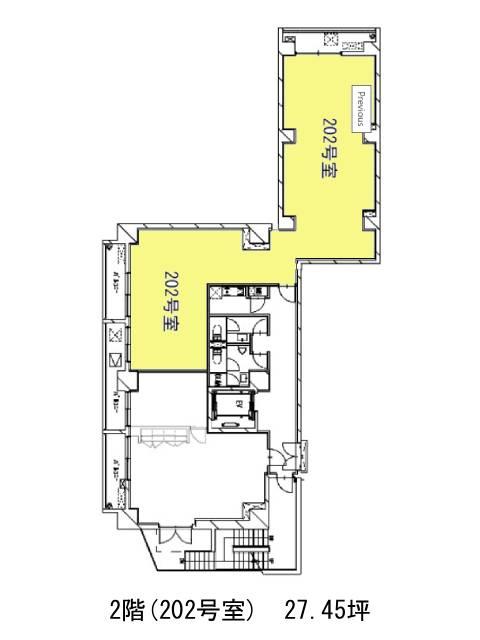
面積
27.45坪賃料(共益費含)
月額634,095円(23,100円/坪)
入居日
2026年1月下旬保証金
3,458,700円礼金
なし更新料
新1ケ月償却費
2ケ月竣工
2019年9月構造
RC規模
地上12階トイレ
男女別空調
個別空調エレベーター
有セキュリティ
駐車場
無耐震
新耐震基準基準階天井高
3000mm空室延床面積
27.45坪情報更新日
2025/12/18パークフロント新宿のテナント募集中区画
| 階数 | 面積 | 賃料(共益費含む) | 保証金 | 入居可能日 | 検討リスト | 詳細 |
|---|---|---|---|---|---|---|
| 2 | 27.45坪 | 634,095円/月(23,100円/坪) | 345万円 | 2026年1月下旬 |
…新着物件
アクセス
パークフロント新宿の物件情報
パークフロント新宿(新宿区新宿)は新宿御苑前駅(1番出口)から徒歩2分の賃貸オフィスです。新宿通りから少し奥まった立地に佇む本物件。駅からのアクセスも良好で、利便性と落ち着きのバランスが取れたロケーションが魅力です。建物はマンションタイプですが、区画によっては事務所や店舗用途が相談可能。詳細は都度ご確認ください。事務所区画は約46坪。過去には半分程度の分割募集実績もあるため、柔軟な対応も期待できます。周辺には飲食店も多く、働く環境としてもおすすめです。パークフロント新宿は新宿御苑前駅(1番出口)の他に新宿三丁目駅(C5番出口)徒歩5分、新宿駅(A8番出口)徒歩11分で利用も可能です。

