3階は現在募集がありません
5フロア募集区画あり

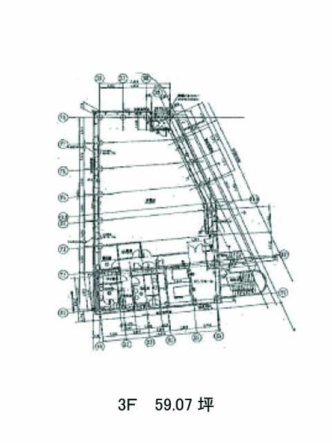
新宿セントランドビル 3階

前の写真 次の写真

物件概要

物件番号

237-00102-10

物件名

新宿セントランドビル

所在地

面積

59.07坪

賃料(共益費含)


入居日

募集終了

保証金

礼金

更新料

償却費

竣工

1994年5月

構造

SRC

規模

地上10階/地下2階

トイレ

男女別

空調

個別空調

エレベーター

セキュリティ

駐車場

耐震

耐震補強済み

基準階天井高

2500mm

空室延床面積

311.18坪

最寄駅

情報更新日

2025/11/17

新宿セントランドビルのテナント募集中区画

階数 面積 賃料(共益費含む) 保証金 入居可能日 検討リスト 詳細
4 72.12坪 1,586,640円/月(22,000円/坪) 1,586万円
5 72.12坪 1,586,640円/月(22,000円/坪) 1,586万円
6 72.12坪 1,586,563円/月(22,000円/坪) 1,586万円
7 72.12坪 1,586,640円/月(22,000円/坪) 1,586万円 相談
9 22.70坪 637,782円/月(28,097円/坪) 637万円 2025年12月上旬
…新着物件

アクセス

新宿セントランドビルの物件情報

新宿セントランドビル(新宿区西新宿)は都庁前駅(A4番出口)から徒歩6分の賃貸オフィスです。
新宿中央公園の近くにある、地上10階・地下2階建てのビルです。1階がガソリンスタンドになっています。基準階は72.15坪の五角形の間取りです。若干変形した間取りですが、柱が邪魔をしない構造になっていて、床はフリーアクセスなので、レイアウトしやすいと思います。室内に更衣室が設置されていて、給湯室と男女別トイレは共用部に設置されています。窓から、近くにある新宿中央公園の緑が見える、環境の良い立地です。
新宿セントランドビルは都庁前駅(A4番出口)の他に新宿駅(7番出口)徒歩7分、西新宿駅(E4番出口)徒歩9分で利用も可能です。

近隣のエリア・駅から探す