5階は現在募集がありません
141ビル 5階
物件概要
141ビルのテナント募集中区画
現在、空室がございません。
141ビルのアクセス
141ビルの物件情報
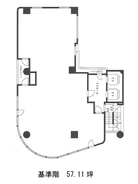
141ビル(新宿区西新宿)は新宿西口駅(D3番出口)から徒歩1分の賃貸オフィスです。1988年竣工、地上9階地下2階建ての鉄骨鉄筋コンクリート造です。1階にはドラッグストア、2階にはカフェが入っておりちょっとした買い物や食事、打ち合わせに大変便利でしょう。また大通りに面しているため交通量も多く視認性が高いです。主な設備面としては男女トイレ別、空調、エレベーター2基完備です。基準階面積は約57坪で室内は円を描いたようなデザイン性のある造りですが、柱の数も少なくレイアウト次第では自由に楽しむことができます。141ビルは新宿西口駅(D3番出口)の他に新宿駅(B16番出口)徒歩2分、新宿三丁目駅(A7番出口)徒歩5分で利用も可能です。

