星野第2ビルのテナント募集中区画
| 階数 | 面積 | 賃料(共益費含む) | 保証金 | 入居可能日 | 検討リスト | 詳細 |
|---|---|---|---|---|---|---|
| 2 | 30.54坪 | 550,001円/月(18,009円/坪) | 300万円 | 即 |
…新着物件
アクセス
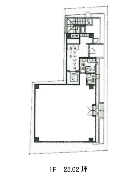
星野第2ビルの物件情報
星野第2ビル(新宿区西新宿)は西新宿駅(1番出口)から徒歩4分の賃貸オフィスです。税務署通りと青梅街道との中間ぐらいにある、4階建てのビルです。ブラウンのガラスカーテンウォールの綺麗な外観です。基準階は30.54坪の正方形に近い間取りです。無柱空間でレイアウトしやすくなっています。給湯室とトイレは共用部に設置されています。新宿駅周辺の繁華街とは違った落ち着いた立地です。西新宿駅の南側へ行くと、副都心のビル群になりますが、この辺りは古い戸建てが残っている住宅街となっています。星野第2ビルは西新宿駅(1番出口)の他に都庁前駅(E3番出口)徒歩8分、新宿駅(A18番出口)徒歩9分で利用も可能です。

