西新宿大京ビルのテナント募集中区画
| 階数 | 面積 | 賃料(共益費含む) | 保証金 | 入居可能日 | 検討リスト | 詳細 |
|---|---|---|---|---|---|---|
| 3 | 142.87坪 | 応相談(応相談) | 応相談 | 2026年9月上旬 | ||
| 4 | 250.63坪 | 応相談(応相談) | 応相談 | 2026年4月上旬 |
…新着物件
西新宿大京ビルのアクセス
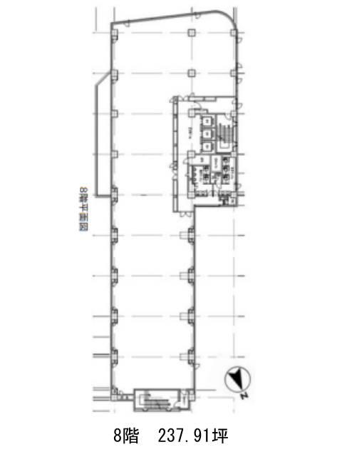
西新宿大京ビルの物件情報
西新宿大京ビル(新宿区西新宿)は西新宿駅(1番出口)から徒歩3分の賃貸オフィスです。外観はグレーを基調とした大きなタイルとガラスウォールで構成され、大通り沿いに位置した視認性が良好なオフィスビルです。エントランスホールは重厚感のある石張りで高級感のある空間となっており、またフロア内のホール前は木目調で洗練されたデザイン性の高いハイグレードなビルとなっております。基準階フロアは約250坪と広く、貸室内は整形された形なのでデスク等の配置はしやすいでしょう。駐車場のご利用も可能で、有人警備と機械警備が併用されているため、セキュリティ面でも大変安心です。西新宿大京ビルは西新宿駅(1番出口)の他に新宿駅(A18番出口)徒歩5分、新宿西口駅(D4番出口)徒歩7分で利用も可能です。

