4階 401は現在募集がありません
2フロア募集区画あり

西新宿大京ビル 4階 401

前の写真 次の写真

物件概要

物件番号

237-00433-70

物件名

西新宿大京ビル

所在地

面積

250.86坪

賃料(共益費含)


入居日

募集終了

保証金

礼金

更新料

償却費

竣工

1994年2月

構造

SRC

規模

地上10階/地下2階

トイレ

男女別

空調

個別空調

エレベーター

セキュリティ

駐車場

耐震

新耐震基準

基準階天井高

2600mm

空室延床面積

393.50坪

最寄駅

情報更新日

2026/04/07

西新宿大京ビルのテナント募集中区画

階数 面積 賃料(共益費含む) 保証金 入居可能日 検討リスト 詳細
3 142.87坪 応相談(応相談) 応相談 2026年9月上旬
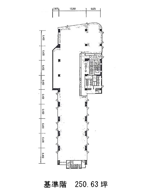
4 250.63坪 応相談(応相談) 応相談 2026年4月上旬
…新着物件

西新宿大京ビルのアクセス

西新宿大京ビルの物件情報

西新宿大京ビル(新宿区西新宿)は西新宿駅(1番出口)から徒歩3分の賃貸オフィスです。
外観はグレーを基調とした大きなタイルとガラスウォールで構成され、大通り沿いに位置した視認性が良好なオフィスビルです。エントランスホールは重厚感のある石張りで高級感のある空間となっており、またフロア内のホール前は木目調で洗練されたデザイン性の高いハイグレードなビルとなっております。基準階フロアは約250坪と広く、貸室内は整形された形なのでデスク等の配置はしやすいでしょう。駐車場のご利用も可能で、有人警備と機械警備が併用されているため、セキュリティ面でも大変安心です。
西新宿大京ビルは西新宿駅(1番出口)の他に新宿駅(A18番出口)徒歩5分、新宿西口駅(D4番出口)徒歩7分で利用も可能です。

近隣のエリア・駅から探す