1階は現在募集がありません
Daiwa西新宿ビル 1階
物件概要
Daiwa西新宿ビルのテナント募集中区画
現在、空室がございません。
Daiwa西新宿ビルのアクセス
Daiwa西新宿ビルの物件情報
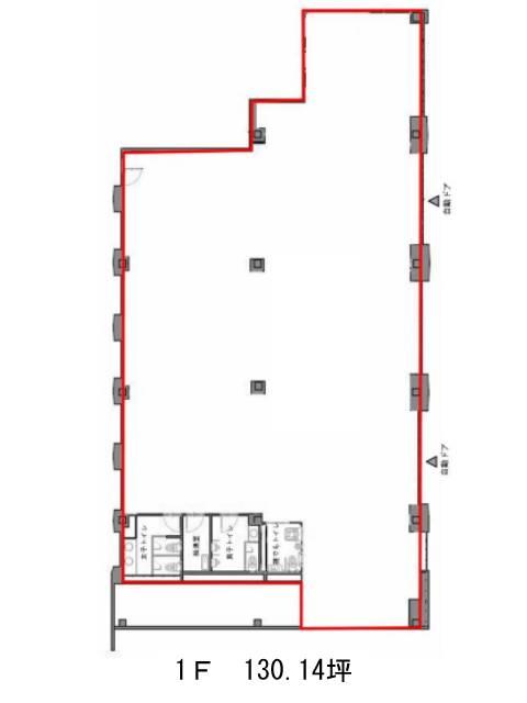
Daiwa西新宿ビル(新宿区西新宿)は新宿駅(7番出口)から徒歩2分の賃貸オフィスです。1991年竣工、地上11階地下2階建のビルです。茶色い外壁に等間隔にガラス窓が並び、すっきりとした外観をしています。間取りは細長い長方形をしており、共用部が一箇所にまとめられています。EV・駐車場・個別空調・男女別トイレといった設備仕様で、床は配線の自由度が高まるOAフロアを導入しています。東京都道新宿副都心八号線沿いに建ち、街路樹の緑が生い茂っています。Daiwa西新宿ビルは新宿駅(7番出口)の他に都庁前駅(A2番出口)徒歩6分、新宿西口駅(D1番出口)徒歩8分で利用も可能です。

