27階 2706は現在募集がありません
12フロア募集区画あり
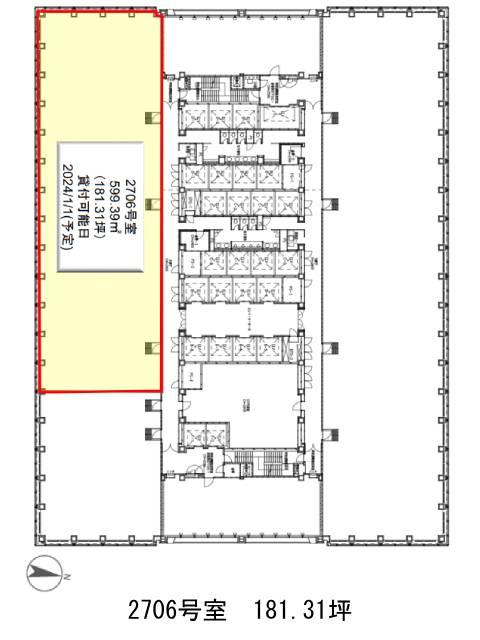
新宿三井ビルディング 27階 2706
物件概要
物件番号
237-00442-658物件名
新宿三井ビルディング所在地
- 東京都新宿区西新宿2-1-1
- アクセスマップ
面積
181.31坪賃料(共益費含)
−入居日
募集終了保証金
−礼金
−更新料
−償却費
−竣工
1974年9月構造
S造規模
地上55階/地下3階トイレ
男女別空調
セントラル+個別空調エレベーター
有セキュリティ
駐車場
有耐震
旧耐震基準基準階天井高
2560mm空室延床面積
1446.30坪情報更新日
2026/03/02新宿三井ビルディングのテナント募集中区画
…新着物件
新宿三井ビルディングのアクセス
新宿三井ビルディングの物件情報
新宿三井ビルディング(新宿区西新宿)は都庁前駅(A1番出口)から徒歩4分の賃貸オフィスです。地上55階建ての高層物件で、ガラス張りの外観は、視認性が高いです。エントランスホールは広々とした空間で、開放感抜群。エレベーターも32基設置されております。また基準階フロアも約500坪を超え、セントラル空調、OAフロア完備、機械式警備など設備も充実しており、駐車場と駐輪場も併設しています。1階には飲食店、2階には郵便局が入っていて便利です。またビル内、徒歩圏内にもコンビニエンスストアや飲食店が多く、お店選びには苦労しないでしょう。新宿三井ビルディングは都庁前駅(A1番出口)の他に西新宿駅(E3番出口)徒歩5分、新宿駅(A17番出口)徒歩6分で利用も可能です。

