第3雨宮ビルのテナント募集中区画
| 階数 | 面積 | 賃料(共益費含む) | 保証金 | 入居可能日 | 検討リスト | 詳細 |
|---|---|---|---|---|---|---|
| 5 | 57.11坪 | 1,476,294円/月(25,850円/坪) | 1,142万円 | 2026年4月 |
…新着物件
第3雨宮ビルのアクセス
第3雨宮ビルの物件情報
第3雨宮ビル(新宿区西新宿)は新宿西口駅(D5番出口)から徒歩4分の賃貸オフィスです。角地に位置する本物件。外観はソリッドな印象です。
エントランスやエレベーターホールは明るい色味の大理石調で統一され、清潔感ある空間に仕上がっています。
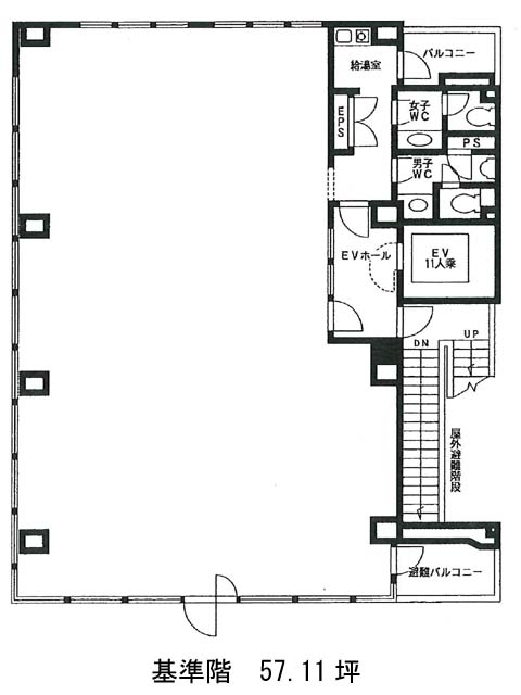
基準階は約57坪。ほぼ整形の間取りで、柱が外周部に配置されているため、レイアウトの自由度が高い点が魅力です(OAフロア仕様)。
給湯室および男女別トイレはエレベーターホール側に配置されており、執務エリアとの明確なゾーニングが図られています。働くうえでの気持ちの切り替えにも配慮された構成です。
周辺には飲食店やコンビニ、公園も点在しており、日々のランチやリフレッシュに便利な環境が整っています。第3雨宮ビルは新宿西口駅(D5番出口)の他に新宿駅(A18番出口)徒歩4分、西武新宿駅(南口)徒歩6分で利用も可能です。

