6階は現在募集がありません
1フロア募集区画あり

第3雨宮ビル 6階

前の写真 次の写真

物件概要

物件番号

237-00468-60

物件名

第3雨宮ビル

所在地

面積

57.11坪

賃料(共益費含)


入居日

募集終了

保証金

礼金

更新料

償却費

竣工

2003年9月

構造

S造

規模

地上9階

トイレ

男女別

空調

個別空調

エレベーター

セキュリティ

駐車場

耐震

新耐震基準

基準階天井高

空室延床面積

57.11坪

最寄駅

情報更新日

2026/04/20

第3雨宮ビルのテナント募集中区画

階数 面積 賃料(共益費含む) 保証金 入居可能日 検討リスト 詳細
5 57.11坪 1,476,294円/月(25,850円/坪) 1,142万円 2026年4月
…新着物件

第3雨宮ビルのアクセス

第3雨宮ビルの物件情報

第3雨宮ビル(新宿区西新宿)は新宿西口駅(D5番出口)から徒歩4分の賃貸オフィスです。
角地に位置する本物件。外観はソリッドな印象です。
エントランスやエレベーターホールは明るい色味の大理石調で統一され、清潔感ある空間に仕上がっています。
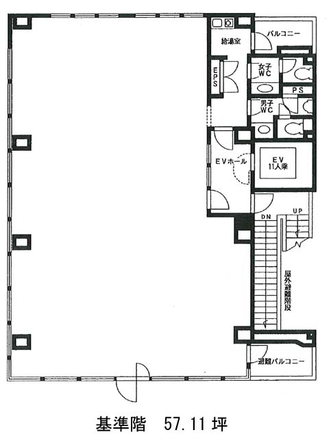
基準階は約57坪。ほぼ整形の間取りで、柱が外周部に配置されているため、レイアウトの自由度が高い点が魅力です(OAフロア仕様)。
給湯室および男女別トイレはエレベーターホール側に配置されており、執務エリアとの明確なゾーニングが図られています。働くうえでの気持ちの切り替えにも配慮された構成です。
周辺には飲食店やコンビニ、公園も点在しており、日々のランチやリフレッシュに便利な環境が整っています。
第3雨宮ビルは新宿西口駅(D5番出口)の他に新宿駅(A18番出口)徒歩4分、西武新宿駅(南口)徒歩6分で利用も可能です。

近隣のエリア・駅から探す