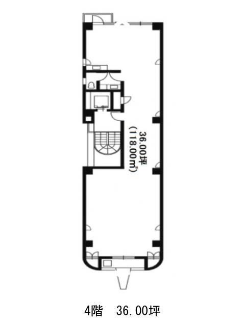
渡邉ビルのテナント募集中区画
| 階数 | 面積 | 賃料(共益費含む) | 保証金 | 入居可能日 | 検討リスト | 詳細 |
|---|---|---|---|---|---|---|
| 5 | 35.93坪 | 720,031円/月(20,039円/坪) | 222万円 | 即 |
…新着物件
渡邉ビルのアクセス
渡邉ビルの物件情報
渡邉ビル(新宿区西新宿)は西新宿駅(1番出口)から徒歩1分の賃貸オフィスです。渡邉ビルは西新宿駅(1番出口)の他に都庁前駅(E3番出口)徒歩5分、新宿駅(A18番出口)徒歩7分で利用も可能です。

