野村不動産西新宿ビル 5階
物件概要
物件番号
237-00574-40物件名
野村不動産西新宿ビル所在地
- 東京都新宿区西新宿8-4-2
- アクセスマップ
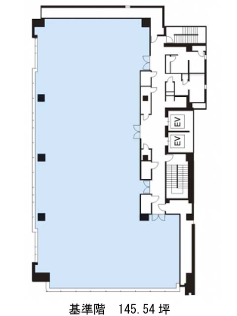
面積
145.54坪賃料(共益費含)
:応相談応相談
入居日
2026年5月上旬保証金
応相談礼金
なし更新料
なし償却費
なし竣工
2010年3月構造
S造規模
地上9階/地下1階トイレ
男女別空調
個別空調エレベーター
有セキュリティ
有駐車場
有耐震
新耐震基準基準階天井高
2800mm空室延床面積
213.77坪情報更新日
2025/11/07野村不動産西新宿ビルのテナント募集中区画
| 階数 | 面積 | 賃料(共益費含む) | 保証金 | 入居可能日 | 検討リスト | 詳細 |
|---|---|---|---|---|---|---|
| 5 | 145.54坪 | 応相談(応相談) | 応相談 | 2026年5月上旬 | ||
| 6 | 68.23坪 | 応相談(応相談) | 応相談 | 即 |
…新着物件
アクセス
野村不動産西新宿ビルの物件情報
野村不動産西新宿ビル(新宿区西新宿)は西新宿駅(1番出口)から徒歩1分の賃貸オフィスです。2010年竣工、地上9階地下1階建のビルです。前面道路側にミラーガラスが貼られ、スタイリッシュな外観をしています。全階にオートドアのセキュリティが備えつけられています。免震構造・Low-eペアガラス・グリッド式システム天井・ゾーン別の個別空調・OAフロア・EV・駐車場といったハイスペックな設備仕様。天井高2800㎜で開放感のあるオフィスとなるでしょう。事務所は2~9階となり、地下1階・1階には店舗が入居します。野村不動産西新宿ビルは西新宿駅(1番出口)の他に都庁前駅(E3番出口)徒歩5分、新宿駅(A18番出口)徒歩7分で利用も可能です。

