17階は現在募集がありません
日土地西新宿ビル 17階
物件概要
日土地西新宿ビルのテナント募集中区画
現在、空室がございません。
アクセス
日土地西新宿ビルの物件情報
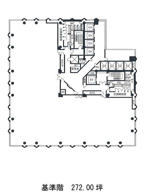
日土地西新宿ビル(新宿区西新宿)は西新宿駅(1番出口)から徒歩4分の賃貸オフィスです。2002年11月の竣工で、新耐震基準に適合した地上23階建ての高層ビルです。基準階フロアは約270坪と広く、貸室内は整形されていて見通し・採光性も良く、明るいオフィスとなるでしょう。フリーアクセスの床を採用していますので、床下に配線を格納してレイアウトを組みやすくすることができます。給湯スペースやトイレは落ち着いた雰囲気で清潔感があり、男女別となっている点も嬉しいポイントです。その他、24時間利用可能、有人警備と機械警備が併用されているため、セキュリティ面でも大変安心かつ充実した設備面となっております。日土地西新宿ビルは西新宿駅(1番出口)の他に都庁前駅(E4番出口)徒歩7分、新宿駅(A18番出口)徒歩10分で利用も可能です。

