第2明宝ビルのテナント募集中区画
| 階数 | 面積 | 賃料(共益費含む) | 保証金 | 入居可能日 | 検討リスト | 詳細 |
|---|---|---|---|---|---|---|
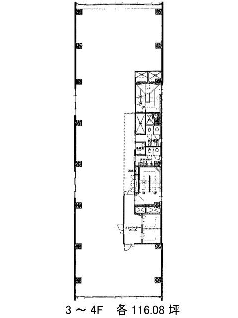
| 3 | 116.08坪 | 応相談(応相談) | 応相談 | 即 | ||
| 8 | 100.39坪 | 応相談(応相談) | 応相談 | 即 |
…新着物件
アクセス
第2明宝ビルの物件情報
第2明宝ビル(新宿区西新宿)は新宿駅(5番出口)から徒歩1分の賃貸オフィスです。大通りに面し、最寄り駅からのアクセスもスムーズな立地に佇む物件。
外観はベージュのパネルにシルバーのフレームが組み合わされ、どこかクラシカルな雰囲気をまとっています。
基準階は約116坪の広さがあり、細長いコの字型の間取り。水回りは執務空間とは切り分けられた室外に集約されており、空間設計も整理されています。エレベーターは2基設置されており、混雑緩和にもつながりそうです。OAフロア、個別空調、機械警備といった設備も整っており、日々の業務に安心感を添えてくれます。第2明宝ビルは新宿駅(5番出口)の他に新宿三丁目駅(E10番出口)徒歩7分、新宿西口駅(D1番出口)徒歩8分で利用も可能です。

