10階は現在募集がありません
PMO西新宿 10階
物件概要
PMO西新宿のテナント募集中区画
現在、空室がございません。
PMO西新宿のアクセス
PMO西新宿の物件情報
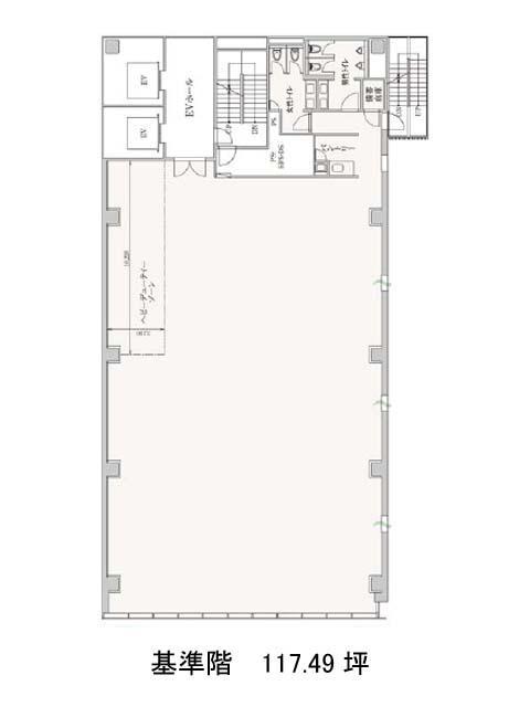
PMO西新宿(新宿区西新宿)は西新宿駅(1番出口)から徒歩2分の賃貸オフィスです。2019年竣工。ガラス張りで黒を基調とする重厚感のある外観で、13階建ての建物は視認性が大変高く、新耐震基準を満たしたオフィスビルとなっております。貸室内は綺麗に整形された長方形となっており、無駄な支柱が存在しないため、自由にレイアウトを組むことができ、また足下に及ぶ大きな窓があるため、太陽光が良く入り、明るく見通しが良いオフィスとなるでしょう。デザイン性の高い給湯スペースやトイレは室内に設置されていますが、隅に固執として独立していますので、執務空間とのメリハリがきちんとあります。PMO西新宿は西新宿駅(1番出口)の他に都庁前駅(E3番出口)徒歩6分、新宿駅(A18番出口)徒歩6分で利用も可能です。

