フロンティアグラン西新宿のテナント募集中区画
| 階数 | 面積 | 賃料(共益費含む) | 保証金 | 入居可能日 | 検討リスト | 詳細 |
|---|---|---|---|---|---|---|
| 1 | 50.48坪 | 1,999,008円/月(39,600円/坪) | 1,090万円 | 即 | ||
| 8 | 93.20坪 | 応相談(応相談) | 応相談 | 2026年4月上旬 |
…新着物件
アクセス
フロンティアグラン西新宿の物件情報
フロンティアグラン西新宿(新宿区西新宿)は初台駅(東口)から徒歩8分の賃貸オフィスです。都庁前駅エリアの落ち着いた街並みに佇む、石造りの外観が印象的なオフィスビル。重厚感と上質さを兼ね備えたデザインが、来訪者にも安心感を与える佇まいです。
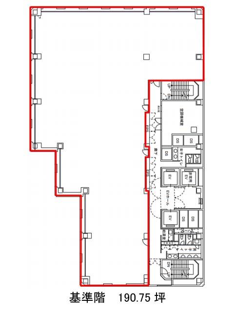
基準階は最大約190坪とゆとりのあるフロア構成で、小規模からの分割にも柔軟に対応。2023年には共用部含め全面リニューアルが実施され、設備面でも快適性が向上しています。
共用部には、ミーティングルームやビジネスラウンジをはじめ、ワークアウトエリアやゴルフスタジオ、ルーフトップテラスなど、多様な用途に対応した施設を備えており、働く環境に充実感をもたらします。さらに、日本国内ではまだ珍しい“ペットフレンドリー”な区画も設けられており、ペットと共に過ごせる働き方にも対応。滑りにくい床材など、ペットにも配慮された設計が特徴です。
OAフロアや機械警備、駐車場も完備しており、快適性と機能性を両立したワークプレイスとしてクオリティの高い一棟です。フロンティアグラン西新宿は初台駅(東口)の他に都庁前駅(A5番出口)徒歩9分、新宿駅(8番出口)徒歩10分で利用も可能です。

