メトロシティ早稲田 4階
物件概要
物件番号
266-00003-40物件名
メトロシティ早稲田所在地
- 東京都新宿区馬場下町5-1
- アクセスマップ
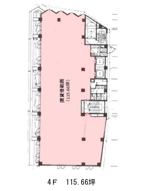
面積
115.66坪賃料(共益費含)
:応相談応相談
入居日
2026年7月上旬保証金
応相談礼金
なし更新料
なし償却費
なし竣工
1992年8月構造
SRC規模
地上7階/地下1階トイレ
男女別空調
個別空調エレベーター
有セキュリティ
有駐車場
有耐震
新耐震基準基準階天井高
2500mm空室延床面積
115.66坪情報更新日
2026/02/13メトロシティ早稲田のテナント募集中区画
| 階数 | 面積 | 賃料(共益費含む) | 保証金 | 入居可能日 | 検討リスト | 詳細 |
|---|---|---|---|---|---|---|
| 4 | 115.66坪 | 応相談(応相談) | 応相談 | 2026年7月上旬 |
…新着物件
メトロシティ早稲田のアクセス
メトロシティ早稲田の物件情報
メトロシティ早稲田(新宿区馬場下町)は早稲田駅(2番出口)から徒歩1分の賃貸オフィスです。1992年竣工、地上7階地下1階建ての鉄骨鉄筋コンクリート造です。外観は白で統一されておりかなりモダンな雰囲気で目を引くデザインです。近辺にはコンビニ、飲食店、スーパー、郵便局などが揃っており大変便利な環境でしょう。主な設備面としてはOAフロア、男女トイレ別、駐車場、機械警備が完備されているのに加えてエレベーターが2基設置されているので上階であっても移動にストレスを感じないビルです。基準階面積は約136坪とかなり広々しており開放感があります。メトロシティ早稲田は早稲田駅(2番出口)の他に若松河田駅(若松口)徒歩12分、牛込柳町駅(東口)徒歩12分で利用も可能です。

