2-11Fは現在募集がありません
1フロア募集区画あり

フロントプレイス千代田一番町 2-11F

前の写真 次の写真

物件概要

物件番号

377-00104-1

物件名

フロントプレイス千代田一番町

所在地

面積

1451.75坪

賃料(共益費含)


入居日

募集終了

保証金

礼金

更新料

償却費

竣工

2024年9月

構造

S造

規模

地上11階

トイレ

男女別

空調

エレベーター

セキュリティ

駐車場

耐震

新耐震基準

基準階天井高

2700mm

空室延床面積

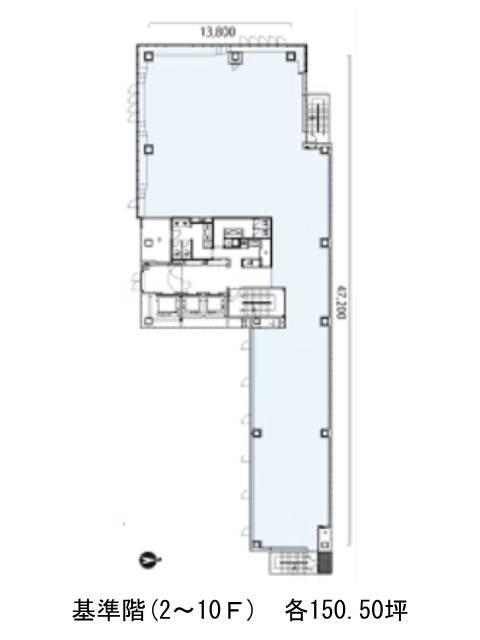
150.56坪

最寄駅

情報更新日

2026/02/25

フロントプレイス千代田一番町のテナント募集中区画

階数 面積 賃料(共益費含む) 保証金 入居可能日 検討リスト 詳細
4 150.56坪 応相談(応相談) 応相談
…新着物件

フロントプレイス千代田一番町のアクセス

フロントプレイス千代田一番町の物件情報

フロントプレイス千代田一番町(千代田区一番町)は半蔵門駅(4番出口)から徒歩1分の賃貸オフィスです。
2024年9月竣工、地上11階建てS造の新築ビルです。ガラス面が多く、明るい室内になるでしょう。デザインの性の高い外観をしています。一括貸しで、延床面積は1451.75坪。プライバシー性が高く、大規模な会社にもおすすめです。設備仕様として、EV3基・駐車場・個別空調・OAフロア・男女別トイレがそろいます。天井高2700mmで開放感のある室内になるでしょう。ビルで働く人々の健康に着目しており、日本初の「WELL v2」のWELL Core予備認証を取得しています。
フロントプレイス千代田一番町は半蔵門駅(4番出口)の他に麹町駅(3番出口)徒歩7分、市ヶ谷駅(A3番出口)徒歩11分で利用も可能です。

近隣のエリア・駅から探す