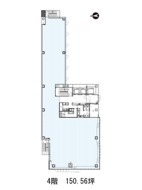
フロントプレイス千代田一番町 4階
物件概要
フロントプレイス千代田一番町のテナント募集中区画
| 階数 | 面積 | 賃料(共益費含む) | 保証金 | 入居可能日 | 検討リスト | 詳細 |
|---|---|---|---|---|---|---|
| 4 | 150.56坪 | 応相談(応相談) | 応相談 | 即 |
…新着物件
フロントプレイス千代田一番町のアクセス
フロントプレイス千代田一番町の物件情報
フロントプレイス千代田一番町(千代田区一番町)は半蔵門駅(4番出口)から徒歩1分の賃貸オフィスです。2024年9月竣工、地上11階建てS造の新築ビルです。ガラス面が多く、明るい室内になるでしょう。デザインの性の高い外観をしています。一括貸しで、延床面積は1451.75坪。プライバシー性が高く、大規模な会社にもおすすめです。設備仕様として、EV3基・駐車場・個別空調・OAフロア・男女別トイレがそろいます。天井高2700mmで開放感のある室内になるでしょう。ビルで働く人々の健康に着目しており、日本初の「WELL v2」のWELL Core予備認証を取得しています。フロントプレイス千代田一番町は半蔵門駅(4番出口)の他に麹町駅(3番出口)徒歩7分、市ヶ谷駅(A3番出口)徒歩11分で利用も可能です。

