相模屋第5ビル 4階
物件概要
物件番号
377-00023-40物件名
相模屋第5ビル所在地
- 東京都千代田区一番町4-25
- アクセスマップ
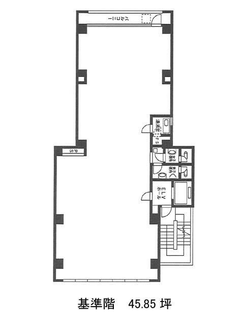
面積
45.85坪賃料(共益費含)
月額756,525円(16,500円/坪)
入居日
即保証金
4,126,500円礼金
なし更新料
なし償却費
1ケ月竣工
1985年2月構造
SRC規模
地上7階トイレ
男女別空調
個別空調エレベーター
有セキュリティ
有駐車場
無耐震
新耐震基準基準階天井高
2400mm空室延床面積
45.85坪情報更新日
2026/03/02相模屋第5ビルのテナント募集中区画
| 階数 | 面積 | 賃料(共益費含む) | 保証金 | 入居可能日 | 検討リスト | 詳細 |
|---|---|---|---|---|---|---|
| 4 | 45.85坪 | 756,525円/月(16,500円/坪) | 412万円 | 即 |
…新着物件
相模屋第5ビルのアクセス
相模屋第5ビルの物件情報
相模屋第5ビル(千代田区一番町)は半蔵門駅(5番出口)から徒歩3分の賃貸オフィスです。最寄駅から徒歩3分というアクセス抜群の好立地のビルです。1985年竣工、ベージュのタイル張りの落ち着いた外観で、新耐震基準を満たしたオフィスビルです。エレベーターは1基設置。室内は支柱が無いためレイアウトは組みやすく、フリーアクセス、個別空調、男女別トイレが完備されております。1階部分にはカフェがテナントとして入っており、付近にはコンビニエンスストアや飲食店が多く、便利な環境です。相模屋第5ビルは半蔵門駅(5番出口)の他に麹町駅(3番出口)徒歩9分、市ヶ谷駅(A3番出口)徒歩11分で利用も可能です。

