KSKビル 2階
物件概要
物件番号
381-00177-71物件名
KSKビル所在地
- 東京都千代田区外神田5-1-15
- アクセスマップ
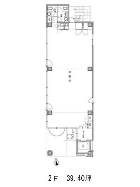
面積
39.40坪賃料(共益費含)
月額823,460円(20,900円/坪)
入居日
2025年12月中旬保証金
5,043,200円礼金
なし更新料
新1ケ月償却費
2ケ月竣工
1989年12月構造
S造規模
地上8階トイレ
男女別空調
個別空調エレベーター
有セキュリティ
有駐車場
無耐震
新耐震基準基準階天井高
空室延床面積
84.91坪情報更新日
2025/11/07KSKビルのテナント募集中区画
| 階数 | 面積 | 賃料(共益費含む) | 保証金 | 入居可能日 | 検討リスト | 詳細 |
|---|---|---|---|---|---|---|
| 2 | 39.40坪 | 823,460円/月(20,900円/坪) | 504万円 | 2025年12月中旬 | ||
| 5 | 45.51坪 | 951,159円/月(20,900円/坪) | 582万円 | 2025年12月中旬 |
…新着物件
アクセス
KSKビルの物件情報
KSKビル(千代田区外神田)は末広町駅(2番出口)から徒歩1分の賃貸オフィスです。1989年竣工、地上8階建てS造のビルです。新耐震基準に適合しています。外壁の一部にエメラルドグリーンが用いられ、遠くからでも視認性が高いでしょう。基準階面積は45.5坪。貸室は長方形で支柱が中央にない為、レイアウトがしやすいでしょう。設備仕様として、EV1基・機械警備・個別空調・貸室外の男女別トイレ・非常階段1箇所がそろいます。貸室内のレイアウトがしやすいOAフロアが導入されています。KSKビルは末広町駅(2番出口)の他に上野広小路駅(A1番出口)徒歩7分、湯島駅(6番出口)徒歩7分で利用も可能です。

