6階は現在募集がありません
1フロア募集区画あり
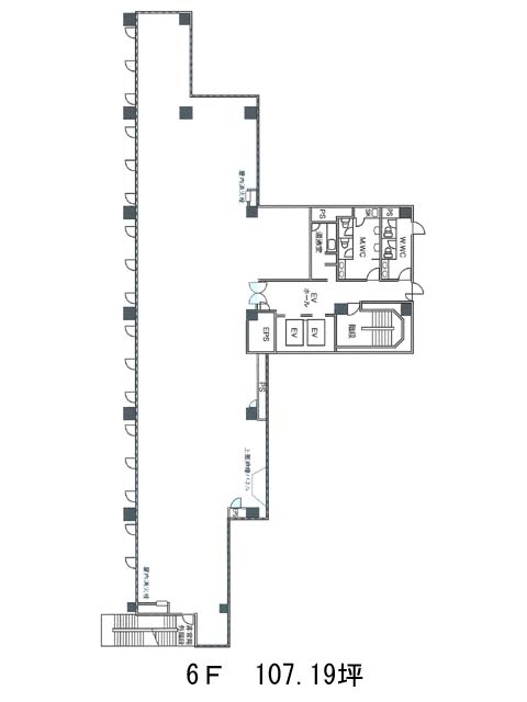
NREG秋葉原ビル 6階
物件概要
物件番号
381-00376-80物件名
NREG秋葉原ビル所在地
- 東京都千代田区外神田1-8-13
- アクセスマップ
面積
107.19坪賃料(共益費含)
−入居日
募集終了保証金
−礼金
−更新料
−償却費
−竣工
1990年8月構造
SRC規模
地上7階/地下1階トイレ
男女別空調
個別空調エレベーター
有セキュリティ
有駐車場
有耐震
新耐震基準基準階天井高
2450(1F2900)mm空室延床面積
168.97坪情報更新日
2026/03/04NREG秋葉原ビルのテナント募集中区画
| 階数 | 面積 | 賃料(共益費含む) | 保証金 | 入居可能日 | 検討リスト | 詳細 |
|---|---|---|---|---|---|---|
| 3 | 168.97坪 | 応相談(応相談) | 応相談 | 2026年8月上旬 |
…新着物件
NREG秋葉原ビルのアクセス
NREG秋葉原ビルの物件情報
NREG秋葉原ビル(千代田区外神田)は秋葉原駅(電気街口)から徒歩4分の賃貸オフィスです。1990年竣工、地上7階地下1階建てSRC造のビルです。横長なフォルムに、ガラス窓が並びすっきりとした外観デザインをしています。基準階面積は168.25坪。支柱が部屋の中央に無く、レイアウトがしやすいでしょう。設備仕様として、EV2基・湯沸室・非常階段2箇所・室外の男女別トイレ・OAフロア・個別空調・駐車場がそろいます。セキュリティとして、機械警備の導入がされています。エレベーターや空調のリニューアル工事が実施済みです。NREG秋葉原ビルは秋葉原駅(電気街口)の他に新御茶ノ水駅(B2番出口)徒歩7分、末広町駅(1番出口)徒歩7分で利用も可能です。

