4階は現在募集がありません
1フロア募集区画あり

SHIMADA秋葉原ビル 4階

前の写真 次の写真

物件概要

物件番号

383-00126-40

物件名

SHIMADA秋葉原ビル

所在地

面積

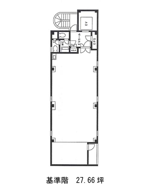
27.66坪

賃料(共益費含)


入居日

募集終了

保証金

礼金

更新料

償却費

竣工

1990年5月

構造

S造

規模

地上7階

トイレ

男女別

空調

個別空調

エレベーター

セキュリティ

駐車場

耐震

新耐震基準

基準階天井高

2400mm

空室延床面積

25.43坪

最寄駅

情報更新日

2026/02/26

SHIMADA秋葉原ビルのテナント募集中区画

階数 面積 賃料(共益費含む) 保証金 入居可能日 検討リスト 詳細
2 25.43坪 応相談(応相談) 応相談 2026年4月上旬
…新着物件

SHIMADA秋葉原ビルのアクセス

SHIMADA秋葉原ビルの物件情報

SHIMADA秋葉原ビル(千代田区岩本町)は岩本町駅(A4番出口)から徒歩2分の賃貸オフィスです。
岩本町駅A4出口から100m以内の好立地。また、徒歩5分足らずで秋葉原エリアへアクセスができますので、買い物やランチのバリエーションを求める際は足を伸ばして頂くと便利でしょう。岩本町SYビルの外観はベージュのタイル張りですっきりとした印象です。各フロア25坪前後でコンパクトですが、トイレは男女別で室外に設置されています。機械警備付でエントランスは土日祝も開放しており、何かと使い勝手のよい賃貸オフィスビルです。
SHIMADA秋葉原ビルは岩本町駅(A4番出口)の他に秋葉原駅(4番出口)徒歩3分、神田駅(5番出口)徒歩9分で利用も可能です。

近隣のエリア・駅から探す